2-Story DC Addition and Home Renovation

Project Timeline: 5 Months

The clients wanted to modernize their 100+ year old colonial single family home and gain living space with a 2 story addition on the back of their house.

The addition upstairs included a new primary suite with a bathroom and walk-in closet as well as a deck. This turned the upper level from 3 bedrooms sharing 1 modest bathroom to a spacious 3 bedroom 2 bathroom house plus an office!

Downstairs, a mudroom and a multi-purpose living room were added.

Project Timeline: 5 Months

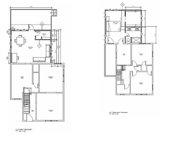
Scope: The clients wanted to modernize their 100+ year old colonial single family home and gain living space with a 2 story addition on the back of their house. The addition upstairs included a new primary suite with a bathroom and walk-in closet as well as a deck. This turned the upper level from 3 bedrooms sharing 1 modest bathroom to a spacious 3 bedroom 2 bathroom house plus an office! Downstairs, a mudroom and a multi-purpose living room were added.

Work Done:

Coordination of all permitting requirements Complete re-design and build out of entire house including additions All new HVAC, plumbing and electrical to include upgrading the electrical service panel new roof and rear deck, new primary suite Exterior work and siding.